堺市中区堀上町

価格 3,480万円

1/14
Point


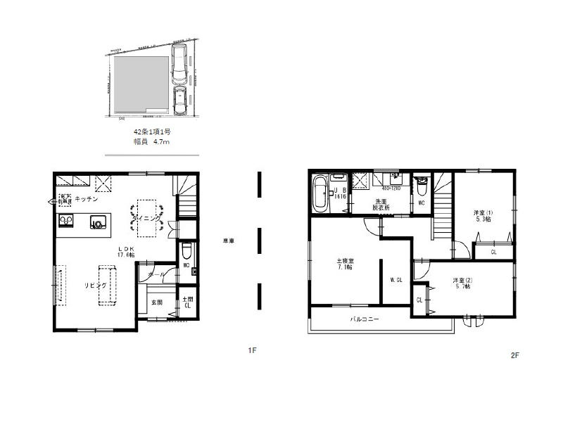
■土地面積:24.72坪 ■建物面積:25.80坪 

【設備】
 ◆キッチン:深型食洗機/タッチレス水栓/IHコンロ/美サイレントシンク
 ◆浴室:ほっカラリ床/魔法びん浴槽
 ◆洗面化粧室:室内物干し金具/サイド収納付き/タッチレス水栓
 ◆ガスでパワフル乾燥!「乾太くん」を標準装備/基礎内に床炭敷設で調温効果♪
 ◆耐震性能:等級3(最高等級)取得

【収納】
 ①玄関:アウトドアやスポーツ用品、ベビーカーなどそのまま仕舞える土間収納♪
 ②キッチン:カップボードを標準装備♪
 ③キッチン:ストック品などは床下収納へ♪
 ④ダイニング:階段下を利用した物入れでお部屋もスッキリ♪
 ⑤2階:主寝室(7.1帖)には約4帖サイズのウォークインクローゼット♪

【ガレージ】
 ◆駐車スペース2台可能です♪(車種による制限がございます。)

物件番号「5140」をお伝えください。

物件情報

価格 3,480万円
間取 3LDK
所在地
堺市中区堀上町
学区 八田荘 850m/八田荘 900m
交通 南海泉北線 深井駅 徒歩20分
堺市 中区
種目 新築戸建
土地面積 81.72m²
建物面積 85.32m²
建ぺい率 60%
容積率 188%
建物構造 木造
地目 宅地
土地権利 所有権
用途地域 第二種中高層住居専用地域
取引態様 仲介
築年月 1985/03
引渡時期 相談
接道 南 4.7m(幅員) 公道
セットバック
特色 公営水道、公共本下水、都市ガス、南側道路(南東・南西含む)、住宅性能保証付き、耐震構造、駐車場2台以上可

更新情報

情報更新日 2026年03月02日
次回更新予定日 2026年03月03日

ローンシミュレーション

物件価格 3,480万円
頭金 万円
金利
借入期間
月々の返済額
年間の返済額
返済総額
利息合計
※ 毎回の返済額が開始から終了まで均等となる「元利均等返済」で算出しています。
※ 金利は期間中固定となる固定金利を採用しています。
※ 月々の返済額は小数点以下を繰り上げしております
※ シミュレーションでの結果は、あくまでも目安で、概算になります。実際にローン契約をする際は、詳細を金融機関にご確認ください。
※ 実際のローン契約時には諸費用・税金(手数料や印紙税、保証料など)が別途かかりますので、契約の際にご確認ください。

物件番号「5140」をお伝えください。

簡易お問合せ

お名前


メールアドレス


問合せ内容


OK